Skip to main content

Au dernier étage d’un très bel immeuble de la rue de Trévise, appartement atypique, traversant, lumineux et extrêmement calme.

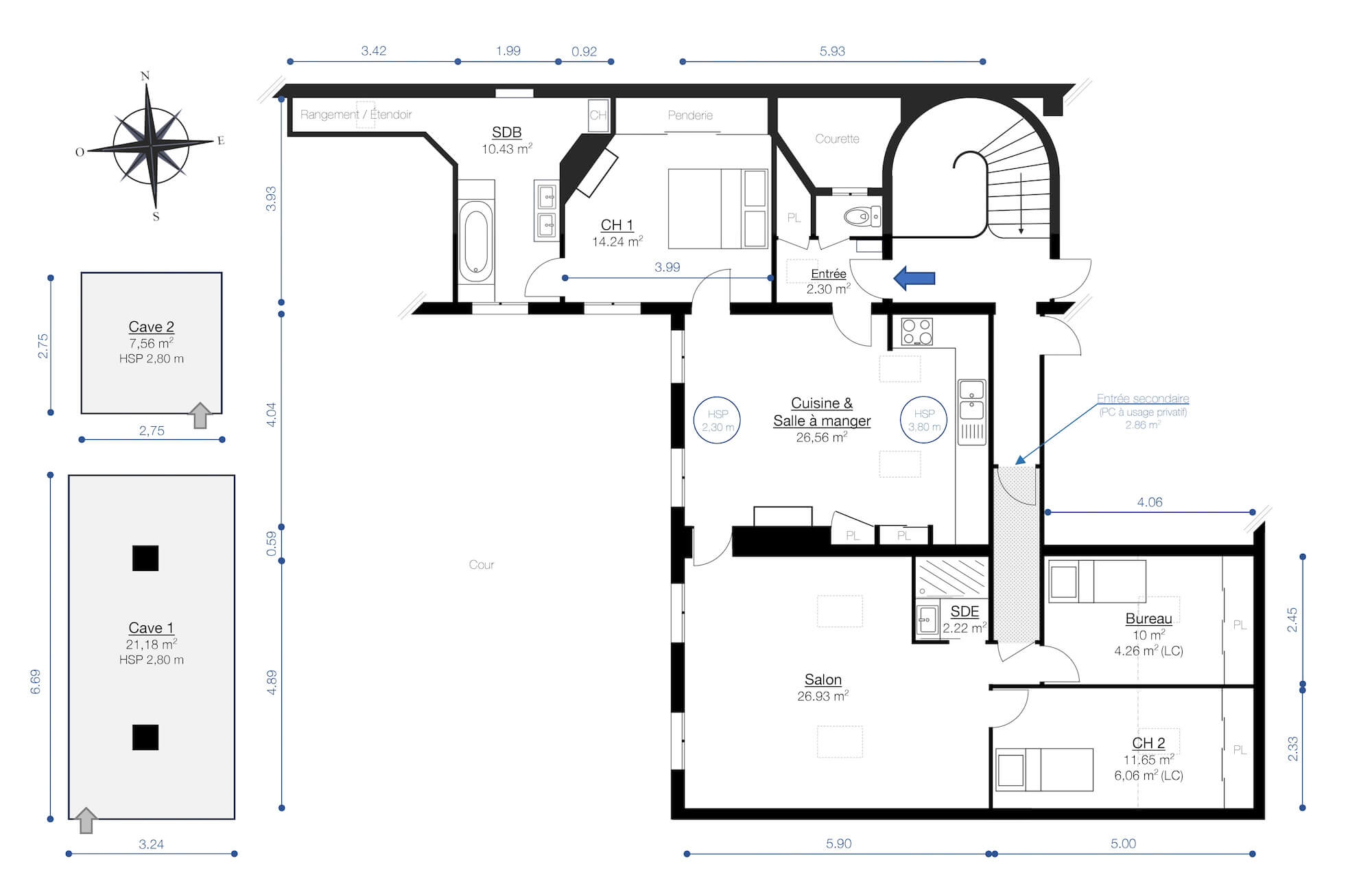
Idéalement situé entre Cadet et les Grands boulevards, cet appartement de 108,56 m2 (95,34 m2 loi Carrez) né de la réunion de différents lots comporte cinq pièces dont deux chambres et un bureau ou chambre de bébé.

Sur cour, au 3ème et dernier étage sans ascenseur, l’appartement s’ouvre sur une grande pièce, cuisine et salle à manger, puis sur un séjour. L’ensemble forme une réception de 53 m2 dont les combles ouverts ainsi que les nombreuses fenêtres et Vélux offrent de chaleureux et larges volumes. La hauteur sous plafond atteint jusqu’à 3,80 mètres et la vue est dégagée.

La première grande pièce dessert une chambre principale avec dressing puis une salle de bain. De l’autre côté, se trouvent une chambre et un bureau ou chambre de bébé en sous-pente, et une salle d’eau. Cette partie récente de l’appartement est aisément reconfigurable. Une troisième chambre pourrait y être aménagée.

Parquet point de Hongrie, tomettes anciennes, poutres, cheminée et poêle.

Toilettes séparées, nombreux rangements.

DPE : Classe E

L’appartement dispose d’une entrée secondaire et de l’usage privatif d’un couloir.

Deux grandes caves, l’une de 21,18 m2, l’autre de 7,56 m2.

Copropriété entretenue, budget stable, sans procédure, majorité de copropriétaires occupants, gardien.

Proche écoles et commerces. Bistrots, théâtres et cinémas d’un côté, square Montholon de l’autre.

Très bien desservi.

Surface loi Carrez
95,34 m²
Surface au sol
108,56 m²
Nombre de pièces
5
Nombre de chambres
2 chambres
et un bureau ou chambre de bébé
Étage
3ème et dernier étage
Nombre de niveaux
1
Hauteur sous plafond
de 2,30 à 3,80 m
Cuisine
ouverte sur la salle à manger
Cave
2 grandes caves
l’une de 21,18 m², l’autre de 7,56 m²
hauteur sous plafond 2,80 m
Parking
une place disponible dans un immeuble voisin, en sus
Exposition
traversant
est et ouest
État du bien
bon état général
cuisine et salle de bain à rénover
Vue
dégagée
Luminosité
très lumineux
Bruit
extrêmement calme
Eau froide
comprise dans les charges
Eau chaude
individuelle gaz et électrique
Chauffage
individuel gaz
chaudière 2019
Saunier Duval
Thema Plus Condens
Type de chauffage
radiateurs
Autres
double vitrage
Vélux avec stores
et commande électrique
DPE
GES
Diagnostic
DPE réalisé le 13 octobre 2023. Montant moyen estimé des dépenses d’énergie pour un usage standard, établi à partir des prix de l’énergie 2021 : entre 1 740 et 2 410 euros par an.
Construction
1830
Copropriété
oui
Nombre de lots
44 lots principaux
Ascenseur
non
Gardien
oui
Accès
digicode
Local à vélo
rack à vélo
dans la cour
Procédures en cours
non
Les informations sur les risques auxquels ce bien sont exposés sont disponibles sur Géorisques
Métro, RER
Cadet
M7
Grands boulevards
M8 • M9
ND de Lorette
M12
Bus
26 • 32 • 43 • 45 • 85
Vélib
Bleue - Trévise
Square Montholon
Commerces
rues adjacentes
et... rue des Martyrs
Écoles
maternelle et élémentaire : rue Buffault
collège Lamartine
Loisirs
cinéma, théâtres et bistrots,
square Montholon,
gymnase Buffault, salles de sport,
piscine municipale Paul Valeyre
Charges générales
224 €/mois
Inclus dans les charges
eau froide
Taxe foncière
1 496 €
Les honoraires sont à la charges du vendeur